КЮДЖИЭМ
КЮДЖИЭМ
Продукты
Печь для обжига кирпича
  • Печь для обжига кирпичаПечь для обжига кирпича

Печь для обжига кирпича

Печь для обжига кирпича — это установка для отверждения бетонных изделий под нормальным давлением с помощью влажного тепла или без давления с помощью пара. Ее можно разделить на два типа: печь для отверждения кирпича с прерывистым режимом работы и печь для отверждения кирпича с непрерывным режимом работы. Первый тип — это печь для отверждения кирпича, камера для отверждения кирпича и т. д., где изделия помещаются в печь для отверждения партиями, а нагрев, поддержание постоянной температуры и охлаждение регулируются количеством подаваемого пара, что подходит для производственного процесса методом водной единицы; туннельные печи для отверждения кирпича, печи для отверждения кирпича со складной линией, вертикальные печи для отверждения кирпича и т. д., где изделия непрерывно загружаются в печь с одного конца, а после трех этапов нагрева, поддержания постоянной температуры и охлаждения выгружаются с другого конца, что подходит для производственного процесса метода водной конвейерной ленты.

Сушильная камера

Существует два основных типа камер для отверждения: одна из них представляет собой стальную конструкцию, а другая —  бетонная конструкция. 


Печь для обжига кирпича — это печь для сушки кирпича, камера для сушки кирпича и т. д., где продукты помещаются в печь для сушки партиями, а нагрев, поддержание постоянной температуры и охлаждение регулируются количеством подаваемого пара, что подходит для производственного процесса метода водной установки; туннельная печь для сушки кирпича, печь для сушки кирпича со складной линией, вертикальная печь для сушки кирпича и т. д., продукция непрерывно загружается в печь с одного конца, и после трех этапов нагрева, поддержания постоянной температуры и охлаждения выгружается с другого конца, что подходит для производственного процесса метода водной конвейерной ленты. Печь для сушки кирпича второго типа с прерывистым режимом работы имеет простую конструкцию и хорошо адаптируется к различным продуктам, но потребляет много пара, имеет плохие условия эксплуатации, низкий коэффициент использования и занимает большую площадь. Печь для сушки кирпича с непрерывным режимом работы позволяет преодолеть недостатки печи с прерывистым режимом работы и легко реализовать автоматизацию, но требует больших инвестиций в инфраструктуру.

Печь для обжига кирпича

Система стеллажей для отверждения стали

Печь для обжига кирпича

Бетонная конструкция


Система сушильных стеллажей

Конструкция системы Большая камера
Лифты и понижающие устройства, интегрированные в окружающую среду камеры
Одинаковый климат для всех видов бетонных изделий
Прямая подача в постоянный климат
Сокращение времени отверждения
Подходит для систем испарения, нагрева и циркуляции воздуха
Низкие инвестиции

Все варианты системы также могут быть установлены в качестве отдельно стоящих построек.

Печь для обжига кирпичаПечь для обжига кирпича

Конструкция системы однокамерная/двухкамерная
Системы из горячеоцинкованной или нержавеющей стали с полным покрытием внешних, разделительных и потолочных поверхностей. Переднее уплотнение с помощью индивидуально подобранных рольставней.
Гибкий ассортимент продукции благодаря камерной системе
Особенно высокая герметичность камер между собой
Подходит для систем испарения, нагрева и циркуляции воздуха

Все варианты системы также могут быть установлены в качестве отдельно стоящих построек.

Печь для обжига кирпичаПечь для обжига кирпича

Камеры отверждения для работы с вилочным погрузчиком
Равномерный климат для всех бетонных изделий благодаря встроенной системе циркуляции воздуха
Простой и безопасный процесс загрузки
С интегрированными стеллажами или для ручных передвижных стеллажей

Печь для обжига кирпичаПечь для обжига кирпича

Подробная информация о стеллажах для отверждения

Печь для обжига кирпича

“Клипса” технология
Для быстрой сборки даже неквалифицированным персоналом
Простая замена для целей технического обслуживания
Наилучший профиль для экстремальных нагрузок

Печь для обжига кирпича

Технология рельсовых зажимов
Материалозащитная, прочная система соединения
Долговечный и эффективный

Печь для обжига кирпича

Система выравнивания
Индивидуальные настройки
Оптимальное выравнивание


Бетонная конструкция

Камера для отверждения бетона может быть построена непосредственно из бетона и оборудована соответствующими опорами, либо она может быть построена из кирпича и оборудована соответствующими опорами.

Печь для обжига кирпичаПечь для обжига кирпичаПечь для обжига кирпича

Печь для обжига кирпича


Способ отверждения

Методы отверждения в отверждающей камере можно условно разделить на три типа:
Естественное отверждение
Паровое отверждение с помощью паровой системы.
Система циркуляции воздуха.

Печь для обжига кирпичаПечь для обжига кирпичаПечь для обжига кирпича


Система пылеудаления

В соответствии с требованиями по загрязнению воздуха в различных местах, части линии по производству бетонных блоков, отвечающие за удаление пыли, в основном включают следующие места:

1. Цементный силос с пылевым фильтром

Печь для обжига кирпича

2. Точки разгрузки ленты для верхнего и нижнего бункеров дозатора.

Печь для обжига кирпича

3. Верхняя часть бункера для смесителя. А также смеситель. for basemix and facemix

Печь для обжига кирпича

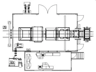
4. Часть машины для производства бетонных блоков

Печь для обжига кирпича

5. Кубические блоки, система возврата досок, щетка для поддонов и т. д.

Печь для обжига кирпича

Система предназначена для контроля загрязнения воздуха бетонной и агрегатной пылью, образующейся на линии по производству бетонных блоков. Для удаления пыли можно использовать вытяжной колпак или соответствующие трубы.
Газ, содержащий пыль, поступает из трубопровода в высокоэффективный очиститель. Пылевой газ улавливается и очищается высокоэффективным очистительным фильтром в очистителе. Твердые частицы прилипают к внешней стороне мешка под действием отрицательного давления вентилятора. Импульсный клапан управляется контроллером через регулярные промежутки времени. Система автоматически промывается и очищается изнутри наружу. Во время процесса обратной промывки частицы попадают в бункер для золы и собираются, а чистый газ выходит через дымоход.

Печь для обжига кирпича


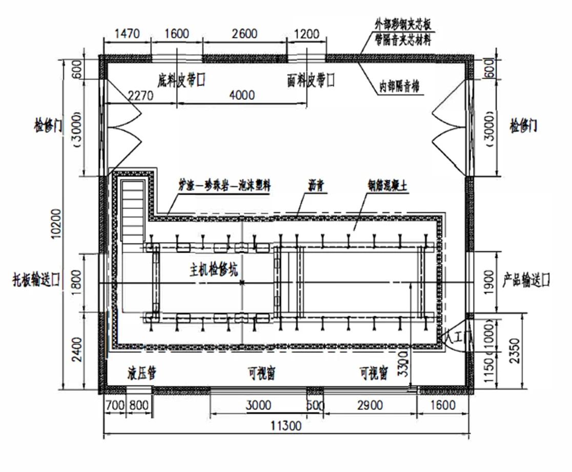
Звукоизоляция

Система защиты от шума используется в основном потому, что оборудование производит соответствующий шум в процессе производства, который влияет на работников на месте и окружающую среду.

Печь для обжига кирпича

Звукоизолирующий туннель для подачи поддонов и дальнейшей транспортировки. Для поддонов различной высоты с регулируемым по высоте скользящим элементом.
Для покрытия машин и кабин автономная система предлагает достаточный запас для реализации всех индивидуальных проектов. Проверенные сэндвич-элементы гарантируют превосходные звукоизоляционные характеристики.

Печь для обжига кирпичаПечь для обжига кирпича

План звукоизоляционной камеры

Печь для обжига кирпичаПечь для обжига кирпича


Горячие Теги: Печь для обжига кирпича
Отправить запрос
Контакты
  • Адрес

    Город версии Чжан, Тиа, Qu Press Week, клавиша F U, Китай

  • Электронная почта

    zoul@qzmachine.com

Близость к клиенту — одна из наших сильных сторон. Вы можете положиться на нас, когда бы мы вам ни понадобились. Мы делаем всё возможное, чтобы быть доступными для вас по всему миру и иметь возможность реагировать максимально быстро, когда это необходимо.
ZENITH Maschinenfabrik GmbH
Улица Зенит 1
D-57290 NeunkirchenD-57290 Нойнкирхен
Quangong Machinery Co.,Ltd.
№ 777, Хайлин-роуд, Тайваньская инвестиционная зона,
Цюаньчжоу, провинция Фуцзянь, Китай

Отправляя контактную форму, вы соглашаетесь с тем, что ваши данные могут быть использованы для обработки вашего запроса (дополнительную информацию и уведомления об отзыве можно найти в заявлении о защите данных).

Новости Рекомендации
верх
X
We use cookies to offer you a better browsing experience, analyze site traffic and personalize content. By using this site, you agree to our use of cookies. Privacy Policy
Reject Accept